My Search Tools:

$3,856,000 - 5901 50 Avenue, Innisfail

-
Bedrooms
-
Baths
N/A
SQ. Feet
N/A
Year Built

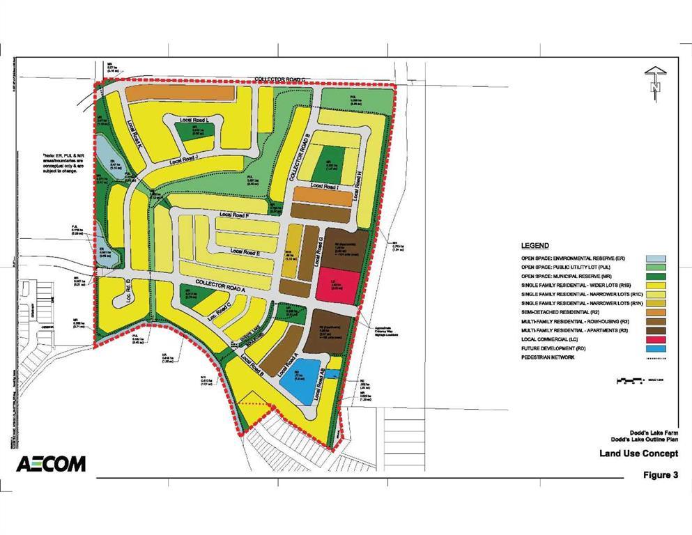
ATTENTION DEVELOPERS & INVESTORS!! 136 Acres of PRIME Residential Mixed Development land with 1785 feet of Dodd's Lake Shoreline in the Heart of Innisfail Alberta. This unique property is an Excellent investment and Development opportunity. An Extensive study with outline plan is in place with the current local ASP & Geo Technical Report. There are approximately 310 single detached dwellings, 65 semi-detached dwellings, 104 row housing units and 257 apartment units with a small neighborhood commercial parcel included in the plan. The properties wetlands and creek only add to the charm that this neighborhood will be developed into with the town fully supportive to any new developers plans for build out. Don't miss this rare opportunity! "Visit REALTORĀ® website for additional information"

Essential Information

  • MLS® #:
    A2291188
  • Price:
    $3,856,000
  • Bathrooms:
    0.00
  • Acres:
    135.88
  • Type:
    Land
  • Sub-Type:
    Residential Land
  • Status:
    Active

Community Information

  • Address:
    5901 50 Avenue
  • Subdivision:
    Dodds Lake
  • City:
    Innisfail
  • County:
    Red Deer County
  • Province:
    Alberta
  • Postal Code:
    T4G 1R7

Additional Information

  • Zoning:
    RD

Listing Details

  • Courtesy of
    Century 21 All Stars Realty Ltd.

MLS listings provided by Pillar 9™. Information Deemed Reliable But Not Guaranteed. The information provided by this website is for the personal, non-commercial use of consumers and may not be used for any purpose other than to identify prospective properties consumers may be interested in purchasing.

Listing information last updated on April 4th, 2026 at 5:30pm CDT.