My Search Tools:

$3,150,000 - 26 Griffin Industrial Point, Cochrane

-
Bedrooms
-
Baths
N/A
SQ. Feet
2019
Year Built

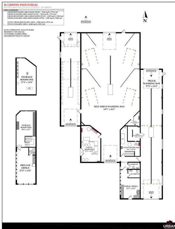
Introducing a rare opportunity to own a purpose-built, high-visibility commercial property designed to serve a wide range of vehicle types — from compact cars to large trucks. Located in the thriving industrial area of Griffin Industrial, this 8,968 sq ft facility offers a turn-key solution for operators in the car/truck wash industry or those seeking a unique income-producing asset. Main Level Highlights: 4 self-serve wash bays, Massive 96-ft Truck & RV Bay (Max Height: 13’6”), Touchless Typhoon drive-through wash bay, Dedicated room for a potential dog wash, Public office, 2 utility rooms, water softener room, and two 2-pc washrooms Mezzanine Level: Private office, 2 storage rooms, Additional 2-pc washroom Modern, clean, and professionally maintained, this facility is equipped with premium components, a brand new Navien Boiler System, and intuitive flow-through access for ease of customer use. The office space is bright and welcoming, while the mezzanine level provides functional work and storage areas. Additional Features: Paved access routes and drive-through lanes, Excellent signage exposure, Plenty of customer and employee parking, Easy access for trucks, trailers, and RVs. This property is ideal for an owner-operator or investor looking to expand or enter the car/truck wash industry with a one-of-a-kind facility — a rarity in today’s market. High-traffic location with quick access to major commuter and transport routes makes this an unbeatable opportunity.

Essential Information

  • MLS® #:
    A2254001
  • Price:
    $3,150,000
  • Bathrooms:
    0.00
  • Acres:
    0.63
  • Year Built:
    2019
  • Type:
    Commercial
  • Sub-Type:
    Industrial
  • Status:
    Active

Community Information

  • Address:
    26 Griffin Industrial Point
  • Subdivision:
    Industrial.
  • City:
    Cochrane
  • County:
    Rocky View County
  • Province:
    Alberta
  • Postal Code:
    T4C 0A2

Exterior

  • Lot Description:
    Paved

Additional Information

  • Zoning:
    I-G

Listing Details

  • Courtesy of
    Grassroots Realty Group

MLS listings provided by Pillar 9™. Information Deemed Reliable But Not Guaranteed. The information provided by this website is for the personal, non-commercial use of consumers and may not be used for any purpose other than to identify prospective properties consumers may be interested in purchasing.

Listing information last updated on December 17th, 2025 at 9:30am CST.