My Search Tools:

$3,600,000 - 450254 82 Street E, Rural Foothills County

-
Bedrooms
-
Baths
N/A
SQ. Feet
2007
Year Built

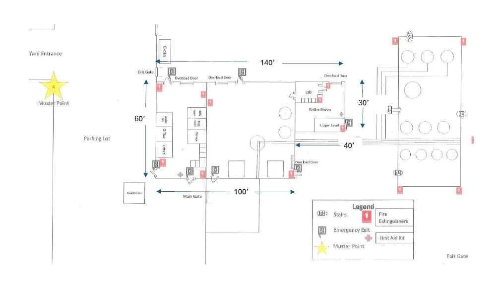
TANK FARM in ALDERSYDE INDUSTRIAL PARK ; formerly utilized as a Bio Diesel plant and recently as Pilot Plant for conversion of wood waste into diesel. 2.45 ACRE SITE with 7200 sf main level INDUSTRIAL BUILDING with offices/shop AND 1700 sf Mezzanine partially developed .The TANK FARM includes 10 permitted Storage Tanks with lights and combined capacity of 1.4 M Litres controlled via Siemens PLC. Property FEATURES ; Corner site with 2 accesses /2007 construction /Paved access /High Power/Yard is FULLY FENCED and GRAVELLED with security cameras and remote monitoring throughout the site/as well as high speed internet.

Essential Information

  • MLS® #:
    A2213921
  • Price:
    $3,600,000
  • Bathrooms:
    0.00
  • Acres:
    2.45
  • Year Built:
    2007
  • Type:
    Commercial
  • Sub-Type:
    Industrial
  • Status:
    Active

Community Information

  • Address:
    450254 82 Street E
  • Subdivision:
    Abilds Industrial Park
  • City:
    Rural Foothills County
  • County:
    Foothills County
  • Province:
    Alberta
  • Postal Code:
    T0L 1T0

Additional Information

  • Zoning:
    GI

Listing Details

  • Courtesy of
    Royal Lepage Solutions

MLS listings provided by Pillar 9™. Information Deemed Reliable But Not Guaranteed. The information provided by this website is for the personal, non-commercial use of consumers and may not be used for any purpose other than to identify prospective properties consumers may be interested in purchasing.

Listing information last updated on December 15th, 2025 at 2:00pm CST.